Student Services
Cyprus, Nicosia
Timeline
2016-2019
Status
Completed
Client
Cyprus International University

Student Services 

Cyprus International University, Nicosia

 

The student services building is a point of assembly at the very heart of the campus. Located at the junction of the two arteries of the campus, the building with its circular shape equally opens up to all sides, and tries to establish itself as a central hub within the urban flow.

 

With its design, the intention was to create a strong relationship between the central plaza and its surrounding. 

 

Students and the administration are brought together at all levels of their journey. This is where they enrol into classes, pay their tuition, and get oriented. So, the functionality comes with a sense of a warm welcome. 

 

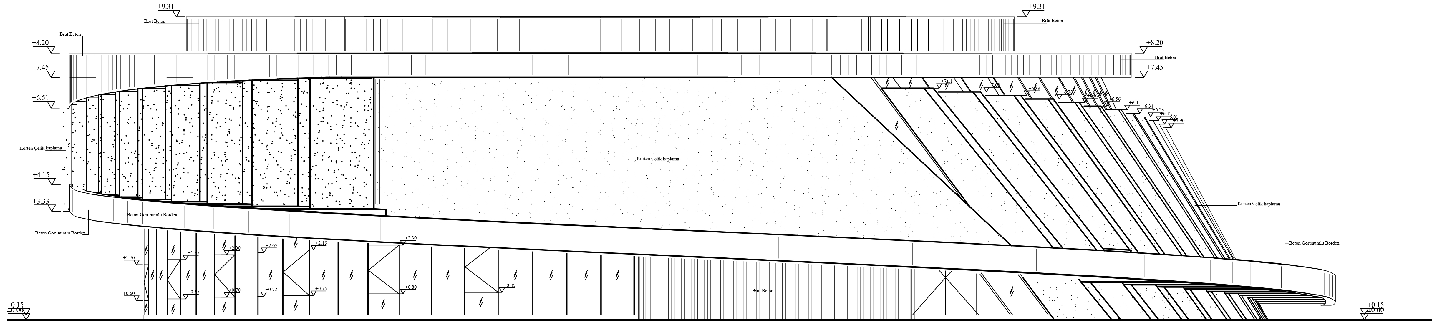
The outer skin is developed strategically to create a certain level of transparency, bringing natural light in, while shielding it from the intense direct southern sunlight. The envelope of the building spirals around, lifting its skirt to create a dialogue between the inner and outer lives of the structure. There is a seamless visual and circular connection flow into the building. The materiality and spatiality set the mood for this interaction, and echo the social culture of the university.

 

When one enters the building, its organic and inviting nature is also felt within. Here, a double height central atrium initiates a connection between multiple layers and surrounding spaces.

 

The student services transform as night falls, the daylight dims down and the building begins to glow from the inside out. Almost as if… it is working as a lantern lightening its surrounding, guiding people to reach their destinations and… designated goals.  

 

 


Design
Saffet Kaya Bekiroglu
Credits

Yasar Gundeger, Mert Evre, Ceren Ilter (DRN)

Plans