NBC Cyprus Education
Nicosia, Cyprus
Timeline
2017-2019
Project Area
20.473m2
Status
Under Construction
Typology
Primary, secondary, and high school campus complex.
Client
NBC

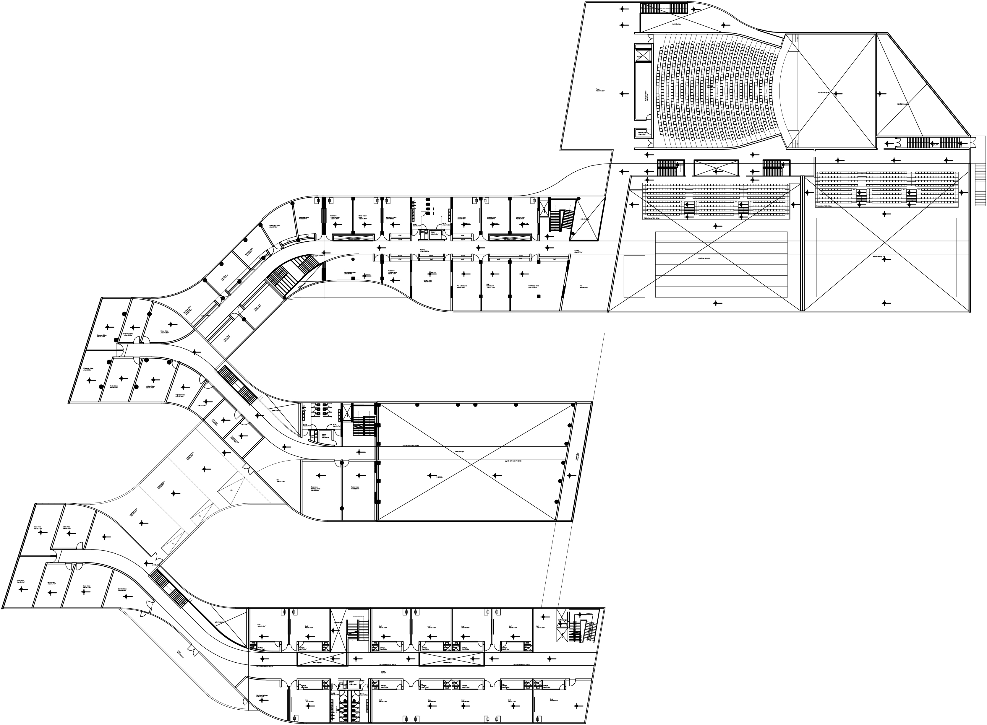
It is an approximately 20,000m2, located on a site in an -strategical way to adapt existing landscape. Campus complex is to house primary, secondary and high school, while additional supporting facilities such as indoor half-Olympic pool, basketball and sport hall, 700 seated auditorium theater with sunken hydraulic orchestra pit. Arrival from West main road offers 2 separate drop-off s (elementary and the high school) where from these two arrival lobbies bifurcate/splits into three blocks as project moves towards East, where primary, secondary and high schools’ classes located. In between two separate outdoor courtyards for primary and high school students use. While building will work as a single entity as a whole, at the same time different parts can be in use autonomously. Allowing different age groups and event to co-exist while being independent from each other without cause any disturbance. Continuous roof skylight complements and guides circulation, while side facade and elevated corridor window allows porosity for natural light and spatial fluidity. 


Design
Saffet Kaya Bekiroğlu

Design Team

Ismail Cenk Gencer
Sevilay Göker
Ekin Turgay

Plans